Lease Price Price Not Available - MLS: 202203223
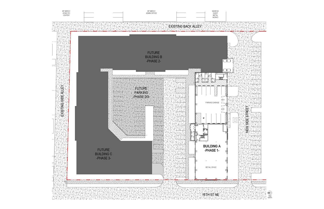
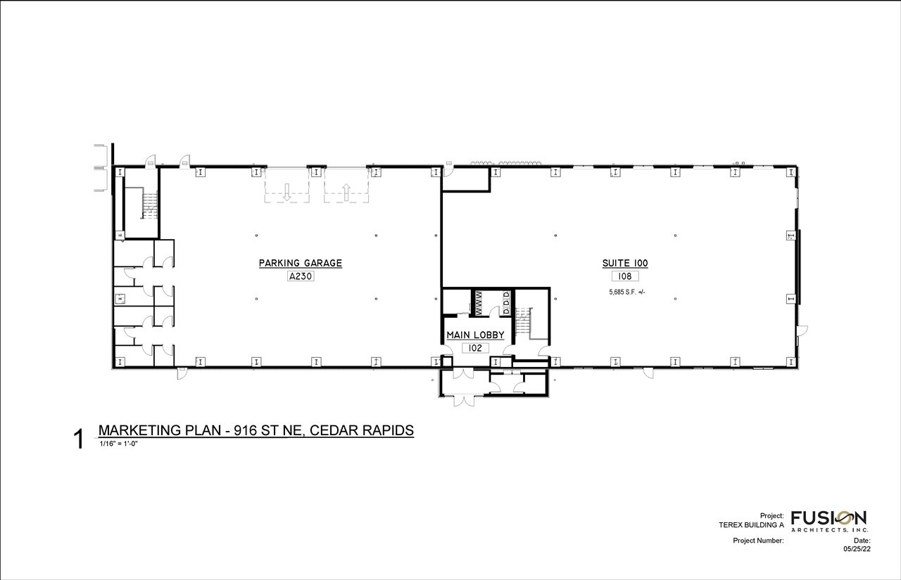
BRAND NEW MIXED USE DEVELOPMENT know as The Hub, in the heart of the Mt. Mercy University and Coe College District has shell space For Lease. Good fit for office, retail and service based business. The Hub is conveniently located in a bustling neighborhood with restaurants, grocery stores, and other service-based tenants, with easy access to I-380. Along with commercial business, the development will feature 186 market rate apartment units for rent. Tenant Improvement Allowance: $10 PSF. Minimum square feet for lease: 2,842. Maximum Contiguous Square Feet For Lease: 5,685.
      MLS #: 202203223
      Lease Price: Price Not Available
      Year Built: 2022
      Sq Ft: 5685.0
      Business: Office Building,   Retail,   Mixed
      Construction: Frame
    
      Floor Type: Concrete Slab Grade
  
      Financing: Other
      
      Utilities: Electricity Available,   Natural Gas Available,   Sewer Available,   Phone Available,   City Water
     
      Acreage: 5.37
       
      Lot: Irregular
      Frontage: County Road
      Energy Generation: 
      Heat/Cooling: Central, Central Air
Information deemed reliable but not guaranteed
|  | Edge Realty Group 319-351-3355 | 
Listing Office: Q4 Real Estate - Agent: Craig Byers - Information furnished by Iowa City Area Association of Realtors